PINEDE & CIGALES
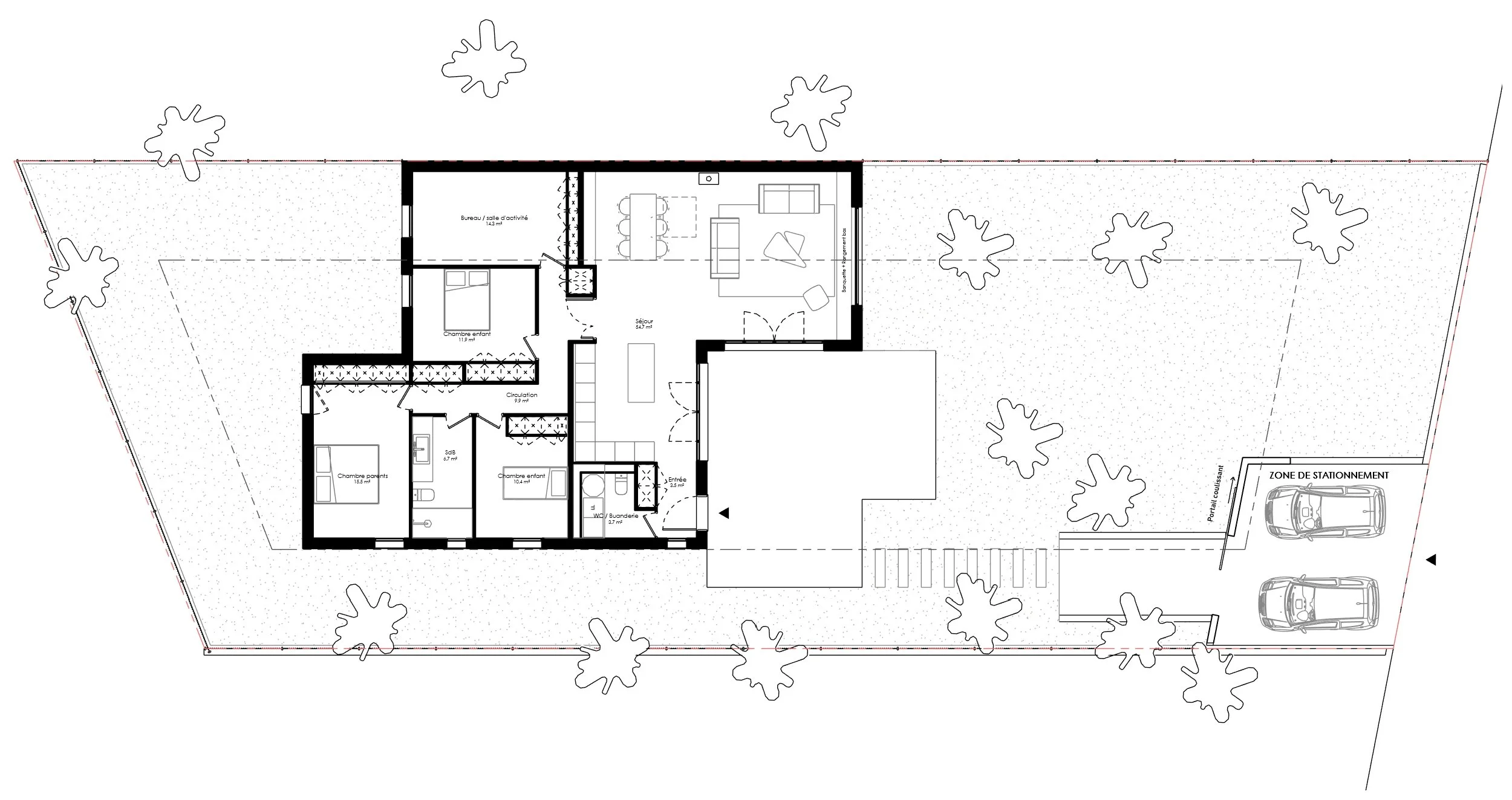
Nichée au cœur d’une parcelle arborée, cette maison de 135 m² s’inscrit avec douceur dans son environnement.
Son architecture puise son inspiration dans les petits mazets provençaux, dont elle réinterprète les volumes simples et les proportions équilibrées. L’association de la pierre locale et du bardage bois confère à l’ensemble une matérialité chaleureuse et intemporelle, en lien direct avec le paysage. Pensée pour accueillir une famille, la maison se compose de trois chambres et d’un bureau, offrant confort et sérénité au quotidien.
Projet en phase d’études pour le permis.

